Depozit Frigorific Bucuresti – Pentagon
Depozit frigorific in Bucuresti, in zona Otopeni, amplast pe Drumul Garii Otopeni. Hala cu acces rapid la soseaua de centura, drumul national DN1 si autostrada A3.
Inchiriere
Hala cu temperature controlata Otopeni
Depozit frigorific in Bucuresti, in partea de nord a orasului, zona Otopeni, pe Strada Drumul Garii Otopeni, cu posibilitate de acces greu din Soseaua de Centura.
Proprietatea este situata la 1 km fata de sensul giratoriu de la intersectia dintre Soseaua de Centura si Drumul Garii Otopeni si 2,3 km de jonctiunea drumului national DN1 cu Soseaua de Centura, iar distanta fata de A3 este de 8,5 km distanta fata de hala de inchiriat.
Zona din care face parte hala de inchiriat este preponderant industriala cu hale ce au atat spatii de depozitare si cat si spatii de productie.
Accesul catre proprietate se face din soseaua de centura a orasului, strada cu doua benzi pe sens, pe Drumul Garii Otopeni, strada asfaltata, cu cate o banda pe sensul de circulatie, ce permite accesul camioanelor de mare tonaj.
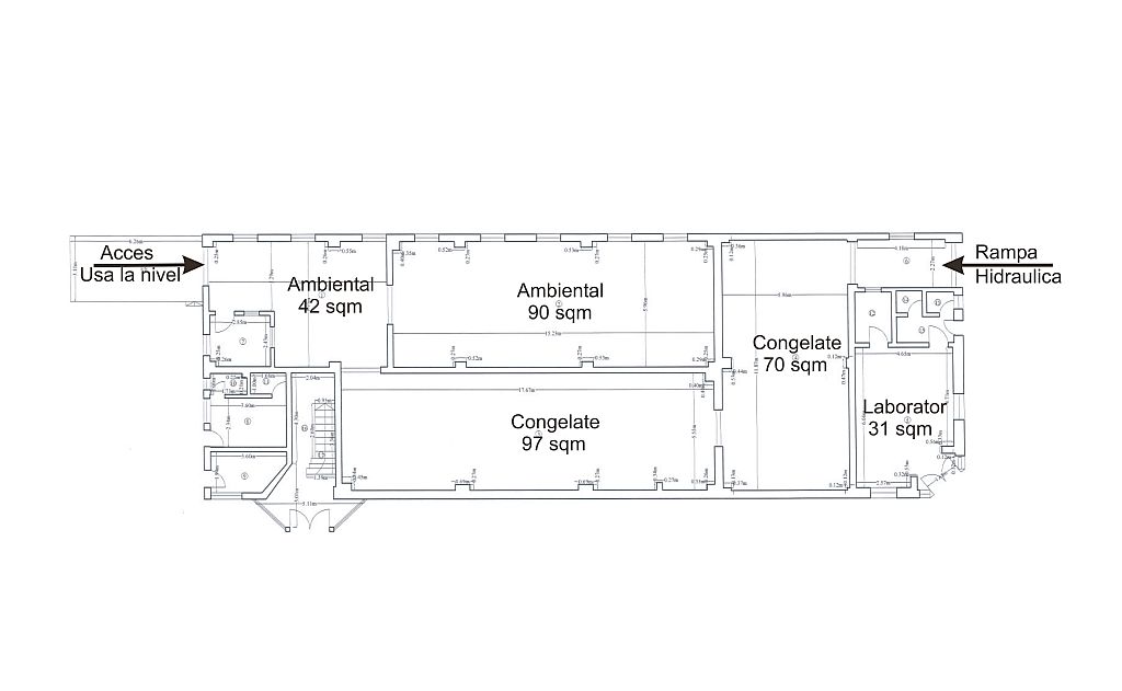
Accesul greu se poate face in curtea proprietatii prin intermediul celor doua porti de acces, iar proprietatea beneficiaza de o platforma betonata de aproximativ 2.000 m2 si o rampa hidraulica de incarcare cu burduf, pentru mentinerea fluxului termic al produselor.
Proprietatea este desfasurata pe 2 niveluri, respectiv:
- Parter cu destinatia depozitare cu inaltimea utila de 4.5 metri cu o suprafata totala de 410 m2, din care aproximativ 170 m2 cu temperatura controlata;
- Mezanin cu destinatia administrativ / birouri cu o suprafata totala de 33 m2;
- Etaj 1 cu destinatia administrativ / birouri cu o suprafata totala de 350 m2;
Proprietatea este disponibila la inchiriere la pretul de 5.500 Eur / luna + TVA;
Pret depozitare congelate: 9 Eur / m2;
Pret depozitare ambientala: 5 Eur / m2;
Pret birouri: 5.5 Eur / m2;
Suprafață existentă 795 m²
Alte oferte din București
Oferte disponibile: 100
Strada Pescarului, Magurele , București , Sud
Chitila , București , Vest
Calea Rahovei , București , Vest
Strada Oxigenului , București , Est
Chitila , București , Vest
Strada Sinaia , București , Nord
Rudeni , București , Vest
Strada Iosifesti , București , Est
Buftea , București , Vest
Afumati, Ilfov , București , Est
Str. Industriei , București , Est
Strada Industriilor, Chiajna , București , Vest
Bulevardul 1 Decembrie 1918 , București , Est
Drumul intre Tarlale , București , Est
Prelungirea Garii Catelu , București , Est
Berceni, DNCB , București , Sud
Splaiul Unirii , București , Est
Splaiul Unirii , București , Est
Str. Sinaia , București , Nord
Str. Livezii, Magurele , București , Sud
Soseaua Oltenitei , București , Sud
Pantelimon , București , Est
Strada Oxigenului 3, Chitila , București , Vest
Soseaua de Centura nr.62C, Măgurele , București , Sud
Autostrada A2 , București , Est
Autostrada A2 , București , Est
Strada Rudeni 76 , București , Vest
Șoseaua Olteniței 226, Popești-Leordeni , București , Sud
Soseaua Alexandriei 193, Bucuresti , București , Sud
Strada Filip Corlatescu, Berceni , București , Sud
Strada Ardealului, nr. 9 , București , Nord
Strada Avram Iancu nr.15, Otopeni , București , Nord
Soseaua Odaii nr. 40 , București , Nord
Strada Turturelelor 142, Măgurele , București , Sud
București , București , Nord
Soseaua Dudesti-Pantelimon , București , Est
Strada Panduri, Rudeni , București , Nord
Soseaua Odaii , București , Nord
Bd. 1 Decembrie 1918 , București , Est
Strada Sinaia , București , Nord
Strada Garii Otopeni , București , Nord
Bd. Timisoara 104a , București , Vest
Strada Balta Albina , București , Est
Soseua de Centura , București , Nord
Soseaua Berceni 104A , București , Sud
Soseaua Alexandriei, Bragadiru , București , Sud
Strada Oxigenului , București , Est
Valea Cascadelor nr. 21 , București , Vest
Drumul Judetean 100, Tunari , București , Nord
Strada Drumul intre Tarlale 6 , București , Est
Soseaua de Centura, Stefanesti , București , Nord
Soseaua de Centura, Stefanesti , București , Nord
Soseaua de Centura, Zona Mogosoaia , București , Nord
Soseaua de Centura, Zona Mogosoaia , București , Nord
Soseaua de centura, Chitila , București , Nord
Strada Macului, Chitila , București , Nord
Soseaua de Centura, Chitila , București , Nord
Soseaua Giurgiului 321 , București , Sud
Strada Sulfinei , București , Sud
Soseaua Tudor Vladimirescu , București , Sud
Drumul National 5 , București , Sud
Strada Carpenului , București , Vest
Calea Bucuresti, Ciorogarla , București , Vest
Calea Bucuresti 51 , București , Vest
Strada Bucuresti , București , Sud
Drumul Intre Tarlale 202-206 , București , Est
Drumul Intre Tarlale 202-206 , București , Est
Str. Biharia 67-77 , București , Nord
Soseaua Giurgiului 3-5 , București , Sud
Bd. Biruintei 102 , București , Est
Bd. Biruintei 136 , București , Est
Strada Prelungirea Garii Catelu 25 , București , Est
Strada Drumul intre Tarlale 6 , București , Est
Valea Cascadelor nr.23 , București , Vest
Splaiul Independentei 319 , București , Vest
Soseaua Centura Bucuresti, Domnesti , București , Vest
Calea Bucurestilor 39-41-43 , București , Nord
Soseaua Centura Bucuresti, Domnesti , București , Vest
Sos. Giurgiului , București , Sud
Soseaua de Centura, Zona Mogosoaia , București
Soseaua de Centura, Zona Mogosoaia , București
Stefanestii de Jos , București , Nord
Str. Oxigenului 7A , București
Drumul National DN2, Afumati , București
Soseaua de centura 20 , București , Nord
Soseaua de Centura, 20 , București
Str. Pavel Ceamur, Popesti-Leordeni , București , Sud
Autostrada A1 (km 15) , București , Vest
Sos. de centura, Chitila , București
Soseaua Berceni , București
Strada Oasului 10 , București
Drumul National DN2, Afumati , București
Bd. Pipera , București
Str. Ana Ipatescu, Jilava , București
DN7 , București , Nord
Str. Oxigenului , București
Str. Drumul Satenilor , București
Sos. Bucuresti Urziceni , București
Str. Ana Ipatescu , București
Soseaua de Centura 22 , București
Ești chiriaș?
Contactează-ne și vei primi consultanță gratuită cu privire la:
- condițiile existente în piață
- renegociere termeni contractuali
- opțiuni de relocare
Ești proprietar?
Contactează-ne dacă vrei să fii prezent în cea mai avansată platformă online dedicată închirierii/vânzării de spatii industriale
Contactează-ne













































































