Hală industrială de închiriat în zona Chiajna
Hală industrială nouă, cu zonă de operare și spații administrative, amplasată într-un parc logistic aflat în Chiajna
Inchiriere
Hală industrială de 470 mp disponibilă pentru închiriere în Chiajna–Ilfov
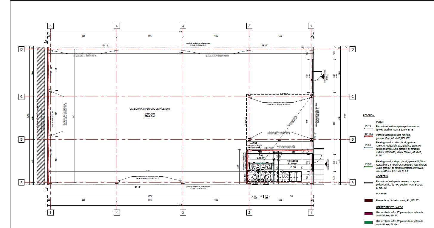
Inchiriere hală industrială nouă, clasa A, potrivită pentru activități de depozitare și producție ușoară, situată în zona logistică Chiajna–Ilfov. Proprietatea face parte dintr-un ansamblu modern de cinci hale, aflat în etapa finală de execuție.
LOCALIZARE
-
Locație: Chiajna – Ilfov, într-o zonă industrială cu acces facil
-
Acces direct din Strada Industriilor, asigurând un flux logistic eficient
-
Conectivitate foarte bună cu principalele rute de distribuție urbană și regională
-
Parte dintr-un parc industrial nou, cu vizibilitate bună și infrastructură modernă
SPECIFICAȚII TEHNICE
-
Suprafață utilă totală: aprox. 470 mp
-
Zonă operațională: ~390 mp
-
Birouri și anexe: ~80 mp, dispuse pe P + 1E parțial
-
-
Înălțime utilă: 6,5 m (înălțime maximă structurală: +8,00 m)
-
Proiect industrial nou, în curs de finalizare
-
Posibilitate de amenajare birouri suplimentare/modulare la cerere (costuri stabilite separat)
Standarde tehnice
-
Termoizolație realizată cu panouri sandwich cu poliuretan
-
Clădire proiectată la Gradul II de rezistență la foc, risc incendiu Clasa C
-
Echipamente de siguranță: trape de desfumare automate și manuale
AVANTAJE
-
Amplasare într-o zonă logistică dezvoltată, cu acces facil la infrastructura locală
-
Conexiune directă cu Strada Industriilor
-
Parte dintr-un ansamblu de hale noi, concepute pentru operare eficientă
-
Configurație flexibilă, potrivită pentru depozitare, producție ușoară sau activități mixte
-
Eficiență energetică ridicată datorită materialelor de construcție moderne
-
Posibilitate de ajustare a spațiilor administrative în funcție de necesități
-
Suprafață totală complex: 5.100 mp
-
25 locuri de parcare amenajate
-
Platforme betonate pentru activități logistice
-
Sisteme moderne de gestionare a utilităților:
-
Bazine de retenție pluvială
-
Puțuri cu hidrofor
-
Stadiu proiect Cladire finalizata
Înălțime utilă 6.5 m
Sarcină încărcare 3 t/m²
- Usi drive-in
- Birouri mezanin
- Paza 24/7
- CCTV
- Depozitare platforma betonata
Alte oferte din București
Oferte disponibile: 100
DN7, Buftea , București , Vest
Strada Avram Iancu , București , Nord
Calea Vitan , București , Est
Oxigenului , București , Est
Afumati, Ilfov , București , Est
Șindrilița , București , Est
Strada Pescarului, Magurele , București , Sud
Chitila , București , Vest
Calea Rahovei , București , Vest
Strada Oxigenului , București , Est
Chitila , București , Vest
Strada Sinaia , București , Nord
Rudeni , București , Vest
Strada Iosifesti , București , Est
Buftea , București , Vest
Afumati, Ilfov , București , Est
Str. Industriei , București , Est
Bulevardul 1 Decembrie 1918 , București , Est
Drumul intre Tarlale , București , Est
Prelungirea Garii Catelu , București , Est
Berceni, DNCB , București , Sud
Splaiul Unirii , București , Est
Splaiul Unirii , București , Est
Str. Sinaia , București , Nord
Str. Livezii, Magurele , București , Sud
Soseaua Oltenitei , București , Sud
Pantelimon , București , Est
Strada Oxigenului 3, Chitila , București , Vest
Soseaua de Centura nr.62C, Măgurele , București , Sud
Autostrada A2 , București , Est
Autostrada A2 , București , Est
Strada Viitorului, nr.122 , Est
Strada Rudeni 76 , București , Vest
Autostrada A1 (km 15) , Vest
Șoseaua Olteniței 226, Popești-Leordeni , București , Sud
Soseaua Alexandriei 193, Bucuresti , București , Sud
Strada Filip Corlatescu, Berceni , București , Sud
Strada Ardealului, nr. 9 , București , Nord
Strada Avram Iancu nr.15, Otopeni , București , Nord
Soseaua Odaii nr. 40 , București , Nord
Strada Turturelelor 142, Măgurele , București , Sud
București , București , Nord
Strada Atomiștilor, Măgurele , București
Centura București , București
Strada Industriilor, 149, Chiajna, județul Ilfov , București
Soseaua Dudesti-Pantelimon , București , Est
Strada Panduri, Rudeni , București , Nord
Soseaua Odaii , București , Nord
Bd. 1 Decembrie 1918 , București , Est
Strada Sinaia , București , Nord
Strada Garii Otopeni , București , Nord
Bd. Timisoara 104a , București , Vest
Strada Balta Albina , București , Est
Soseua de Centura , București , Nord
Soseaua Berceni 104A , București , Sud
Soseaua Alexandriei, Bragadiru , București , Sud
Strada Oxigenului , București , Est
Valea Cascadelor nr. 21 , București , Vest
Drumul Judetean 100, Tunari , București , Nord
Strada Drumul intre Tarlale 6 , București , Est
Soseaua de Centura, Stefanesti , București , Nord
Soseaua de Centura, Stefanesti , București , Nord
Soseaua de Centura, Zona Mogosoaia , București , Nord
Soseaua de Centura, Zona Mogosoaia , București , Nord
Soseaua de centura, Chitila , București , Nord
Strada Macului, Chitila , București , Nord
Soseaua de Centura, Chitila , București , Nord
Soseaua Giurgiului 321 , București , Sud
Strada Sulfinei , București , Sud
Soseaua Tudor Vladimirescu , București , Sud
Drumul National 5 , București , Sud
Strada Carpenului , București , Vest
Calea Bucuresti, Ciorogarla , București , Vest
Calea Bucuresti 51 , București , Vest
Strada Bucuresti , București , Sud
Drumul Intre Tarlale 202-206 , București , Est
Drumul Intre Tarlale 202-206 , București , Est
Str. Biharia 67-77 , București , Nord
Soseaua Giurgiului 3-5 , București , Sud
Bd. Biruintei 102 , București , Est
Bd. Biruintei 136 , București , Est
Strada Prelungirea Garii Catelu 25 , București , Est
Strada Drumul intre Tarlale 6 , București , Est
Valea Cascadelor nr.23 , București , Vest
Splaiul Independentei 319 , București , Vest
Soseaua Centura Bucuresti, Domnesti , București , Vest
Calea Bucurestilor 39-41-43 , București , Nord
Soseaua Centura Bucuresti, Domnesti , București , Vest
Sos. Giurgiului , București , Sud
Soseaua de Centura, Zona Mogosoaia , București
Soseaua de Centura, Zona Mogosoaia , București
Stefanestii de Jos , București , Nord
Str. Oxigenului 7A , București
Drumul National DN2, Afumati , București
Soseaua de centura 20 , București , Nord
Soseaua de Centura, 20 , București
Str. Pavel Ceamur, Popesti-Leordeni , București , Sud
Autostrada A1 (km 15) , București , Vest
Sos. de centura, Chitila , București
Soseaua Berceni , București
Ești chiriaș?
Contactează-ne și vei primi consultanță gratuită cu privire la:
- condițiile existente în piață
- renegociere termeni contractuali
- opțiuni de relocare
Ești proprietar?
Contactează-ne dacă vrei să fii prezent în cea mai avansată platformă online dedicată închirierii/vânzării de spatii industriale
Contactează-ne





















































































